Título: Muros de Albañilería Confinada sujetos a Carga Lateral
Ensayos: El ensayo consta de 9 muros con diferentes tipos de confinamientos
Material: Ladrillo (King Kong-Rex) de 24 huecos de arcilla industrial, con dimensiones de 24x12x9 cms, presentado un área neta de 189 cm2 y un área bruta de 287.5 cm2.
Albañilería:

La resistencia a la compresión de la albañileria es de f´m=251 kg/cm2 (ensayos de pilas)
Mortero: Mezcla del cemento con la arena para el asentado de los ladrillos, se usó en una relación de 1:5 (cemento y arena gruesa) en volumen.
Concreto: Concreto de resistencia aproximada de 175 kgf/cm2, siguiendo criterios aplicados en obra.
Acero estructural: Se uso acero corrugado de f`y=4200kgf/cm2, los diámetros usados fueron: 6.35mm (1/4”) ,9.50mm (3/8”) y 12.70mm (1/2”).
Construcción de Muros:
EML-1 y EML-2 : ref. long. y vertical 4 f 3/8″ – malla 3/8”@20 y ref. transv. f 1/4″,ladrillo industrial, ens. muro losa superior.
Autor: John Hernando Delgadillo Huaranga (1994).
- corte de muro
- muro ensayado
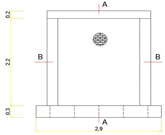
- Vista en elevación de muro







