Título: Experimental Study of Changes in Net Area Clay Bricks and its Influence on the Behavior on Confined Masonry Wall Earthquake-Resistant
Material: Ladrillo de la fábrica Rexposeen un porcentaje de sólidos menor al 75%, y fueron denominadas como tipo A, B y C.
Características: Se ensayaron estructuras de albañilería confinada con aparejo de soga. Los especímenes se ensayaron sometiéndolos a cargas laterales cíclicas.
Albañilería: la resistencia a la compresión de la albañilería es de f´m=108(A), 82(B), 91(C) kg/cm2 (ensayos de pilas-SEGÚN LA TESIS), resistencia en corte v´m= 6.47(A), 7.47(B), 8.52(C) kg/cm2
Mortero: Para la construcción de los especímenes se empleó mortero proporcional volumétrica 1:5 (cemento: arena gruesa)
Concreto: El concreto utilizado tuvo características normales y su resistencia de diseño fue 175 kg/cm2
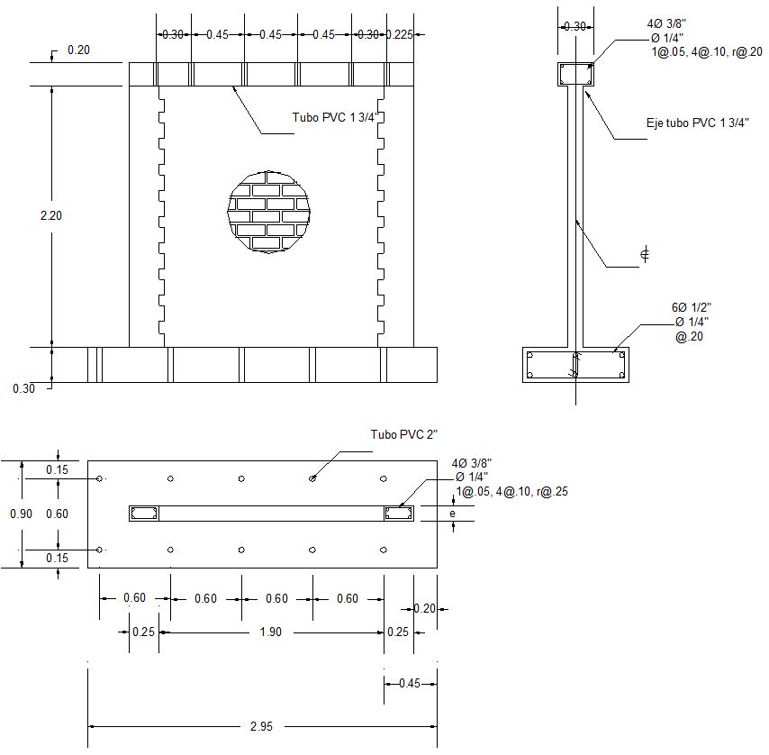
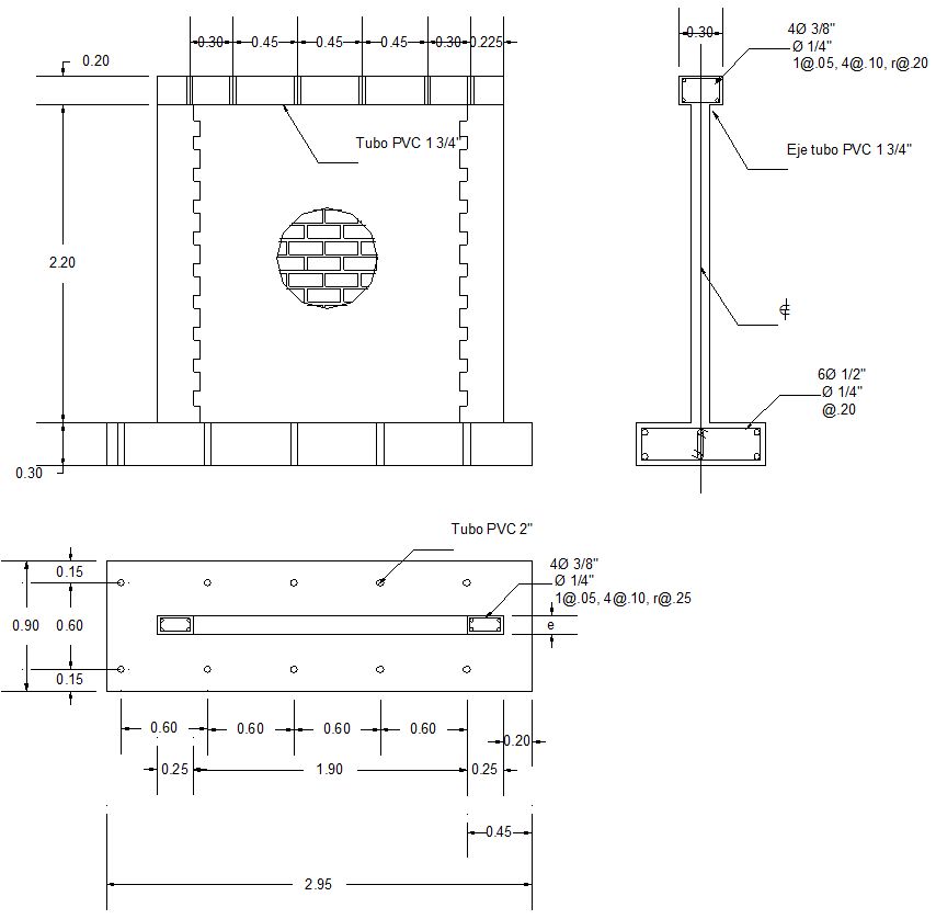
Muro: Se usó el ladrillo A y B por tener menor y mayor porcentajes de vacíos, con endentado de 5 cm.
Autor: Mónica Ramirez (2001)
- fotos de unidades de ladrillo
- unidades de ladrillo







