Título: Muros de Albañilería Confinada sujetos a Carga Lateral
Ensayos: El ensayo consta de 9 muros con diferentes tipos de confinamientos.
Material: Ladrillo (King Kong-Rex) de 24 huecos de arcilla industrial, con dimensiones de 24x12x9 cms, presentado un área neta de 189 cm2 y un área bruta de 287.5 cm2
Albañilería:

La resistencia a la compresión de la albañilería es de f´m=251 kg/cm2 (ensayos de pilas).
Mortero: Mezcla del cemento con la arena para el asentado de los ladrillos, se usó en una relación de 1:5 (cemento y arena gruesa) en volumen.
Concreto: Concreto de resistencia aproximada de 175 kgf/cm2, siguiendo criterios aplicados en obra.
Acero estructural: Se uso acero corrugado de f`y=4200kgf/cm2, los diámetros usados fueron: 6.35mm (1/4”) ,9.50mm (3/8”) y 12.70mm (1/2”).
Construcción de Muros:
MCH-1 y MCH-2: se utiliza ref cada 4 hiladas varillas de 4f 1/4″ EN REF, VERTICAL Y LONGITUDINAL, ladrillo industrial.
Autor: John Hernando Delgadillo Huaranga (1994).
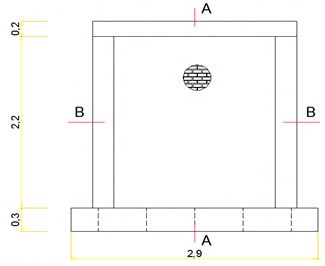
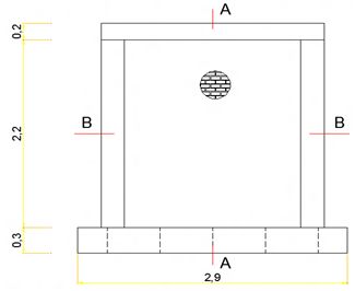
- corte de muro
- histeresis
- muro ensayado







