Título: Muros de Albañilería Confinada sujetos a Carga Lateral
Ensayos: El ensayo consta de 8 muros con 5 diferentes tipos de confinamientos.
Material: Ladrillo (ikaro) de 24 huecos que llegaría representar menos de 25% del área bruta de la base de dimensiones 9.5x12x25 cms.
Albañilería: La resistencia a la compresión de la albañilería es de f´m=97.91kg/cm2 (ensayos de pilas).
Mortero: Mezcla del cemento con la arena para el asentado de los ladrillos, se usó en una relación de 1:5 (cemento y arena gruesa) en volumen.
Concreto: Concreto de resistencia aproximada de 175 kgf/cm2, siguiendo criterios aplicados en obra.
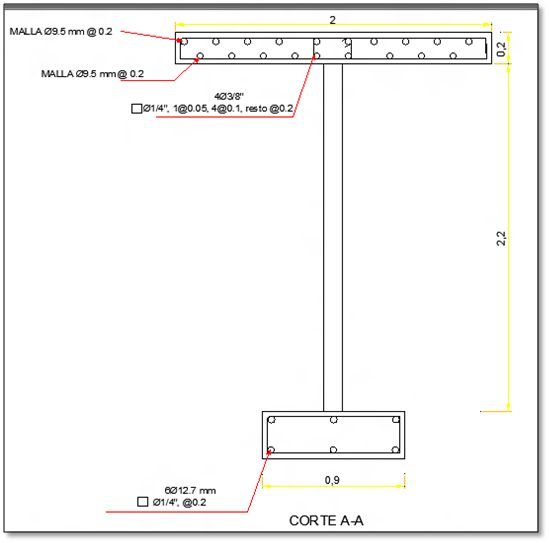
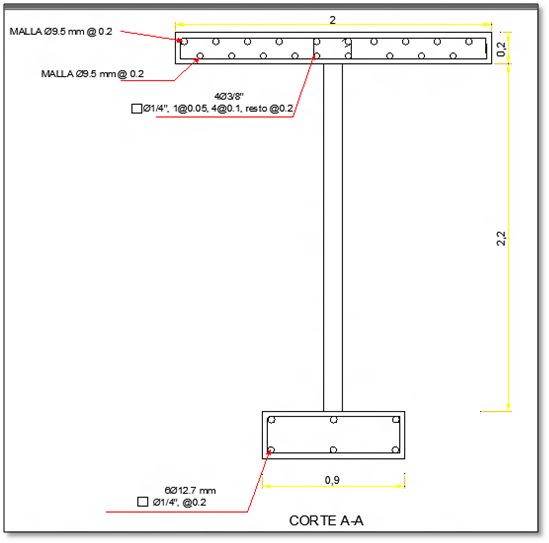
Acero estructural: Se uso acero corrugado de f`y=4200kgf/cm2, cuyo fabricante es sider Perú, los diámetros usados fueron: 6.35mm (1/4”) ,9.50mm (3/8”) y 12.70mm (1/2”).
Construcción de Muros: Dentado de 5 cm en los muros MCST1, MCST2, MLCC1 y MRCEN. Dentado de 2.5cm en los muros MC4C1 y MC4C2. El muro H no presentaba columnas de confinamientos en este caso se hizo en forma dentada con los ladrillos.
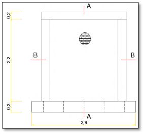
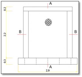
MLCC1: Un muro intermedio en un piso por lo general está soportando una carga repartida a través de la losa, la influencia de la losa como confinamiento superior es el objeto de estudiar un muro cuyas características son iguales al estándar, donde el confinamiento superior consistirá en una losa de concreto armado de un espesor de 20 cm.
Autor: Patricia Isabel Gibu Yague, César Augusto Serida Morisaki (1993).
- Vista en corte
- Vista en elevación
- Vista en planta






