Título: Muros de Albañilería Confinada sujetos a Carga Lateral
Ensayos: El ensayo consta de 8 muros con 5 diferentes tipos de confinamientos.
Material: Ladrillo (ikaro) de 24 huecos que llegaría representar menos de 25% del área bruta de la base de dimensiones 9.5x12x25 cms.
Albañilería: La resistencia a la compresión de la albañilería es de f´m=97.91kg/cm2 (ensayos de pilas).
Mortero: Mezcla del cemento con la arena para el asentado de los ladrillos, se usó en una relación de 1:5 (cemento y arena gruesa) en volumen.
Concreto: Concreto de resistencia aproximada de 175 kgf/cm2, siguiendo criterios aplicados en obra.
Acero estructural: Se uso acero corrugado de f`y=4200kgf/cm2, cuyo fabricante es sider Perú, los diámetros usados fueron: 6.35mm (1/4”) ,9.50mm (3/8”) y 12.70mm (1/2”).
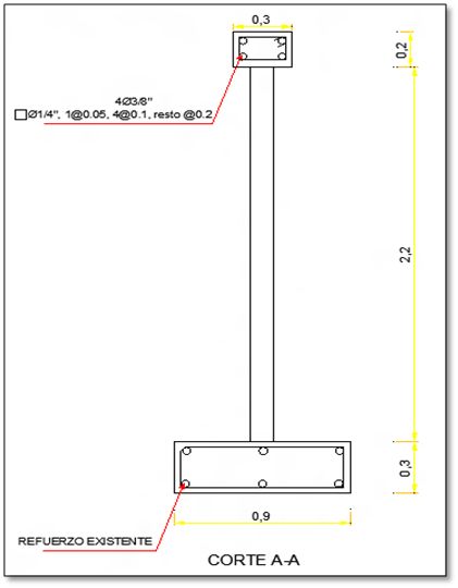
Construcción de Muros: Dentado de 5 cm en los muros MCST1, MCST2, MLCC1 y MRCEN. MRCEN y MRCSE: Se contaba con dos muros simples de albañilería sin confinar, de aproximadamente dos años de antigüedad, con el fin de estudiar su semejanza a los muros estándar y evaluar una posible técnica de reforzamiento de muros existentes, se procedió a confinar los muros, teniendo en cuenta dos variantes.
a) Se endentó las esquinas de un muro y posteriormente se confinó con columnas de iguales características a los confinamientos verticales del muro estándar; este espécimen se denomina
Autor: Patricia Isabel Gibu Yague, César Augusto Serida Morisaki (1993).






