Título: Muros de Albañilería Confinada sujetos a Carga Lateral
Ensayos: El ensayo consta de 8 muros con 5 diferentes tipos de confinamientos.
Material: Ladrillo (ikaro) de 24 huecos que llegaría representar menos de 25% del área bruta de la base de dimensiones 9.5x12x25 cms.
Albañilería: La resistencia a la compresión de la albañilería es de f´m=97.91kg/cm2 (ensayos de pilas).
Mortero: Mezcla del cemento con la arena para el asentado de los ladrillos, se uso en una relación de 1:5 (cemento y arena gruesa) en volumen.
Concreto: Concreto de resistencia aproximada de 175 kgf/cm2, siguiendo criterios aplicados en obra.
Acero estructural: Se uso acero corrugado de f`y=4200kgf/cm2, cuyo fabricante es sider Perú, los diámetros usados fueron: 6.35mm (1/4”) ,9.50mm (3/8”) y 12.70mm (1/2”).
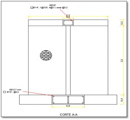
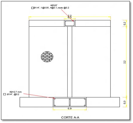
Construcción de Muros: El muro H no presentaba columnas de confinamientos en este caso se hizo en forma dentada con los ladrillos.
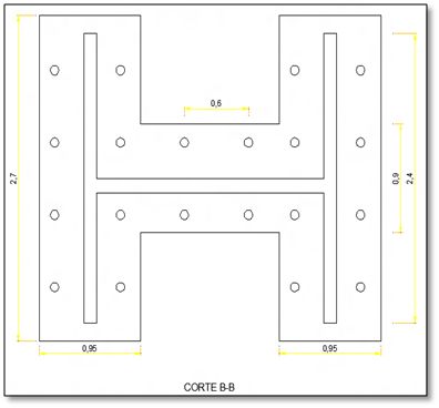
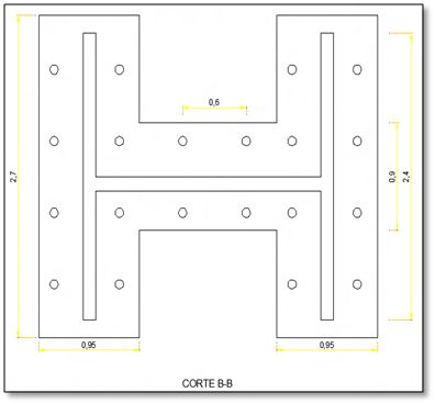
MURO H: Se diseñó un muro cuyo confinamiento lateral estaría dado por muros de iguales características a la estudiada, con vigas de amarre en la parte superior y viga de cimentación en la parte inferior. En general no tubo mayores daños, ya que la falla principal fue el desprendimiento de la albañilería de la viga de cimentación mediante una grieta que avanza casi todo el mortero. Este muro llega solo hasta 1/400.
Autor: Patricia Isabel Gibu Yague, César Augusto Serida Morisaki (1993).






